Bureau Technique en construction métallique
Nous offrons des services de bureau technique sur mesure pour répondre à vos besoins spécifiques en construction métallique, pour serruriers, façadiers et architectes en Suisse romande .
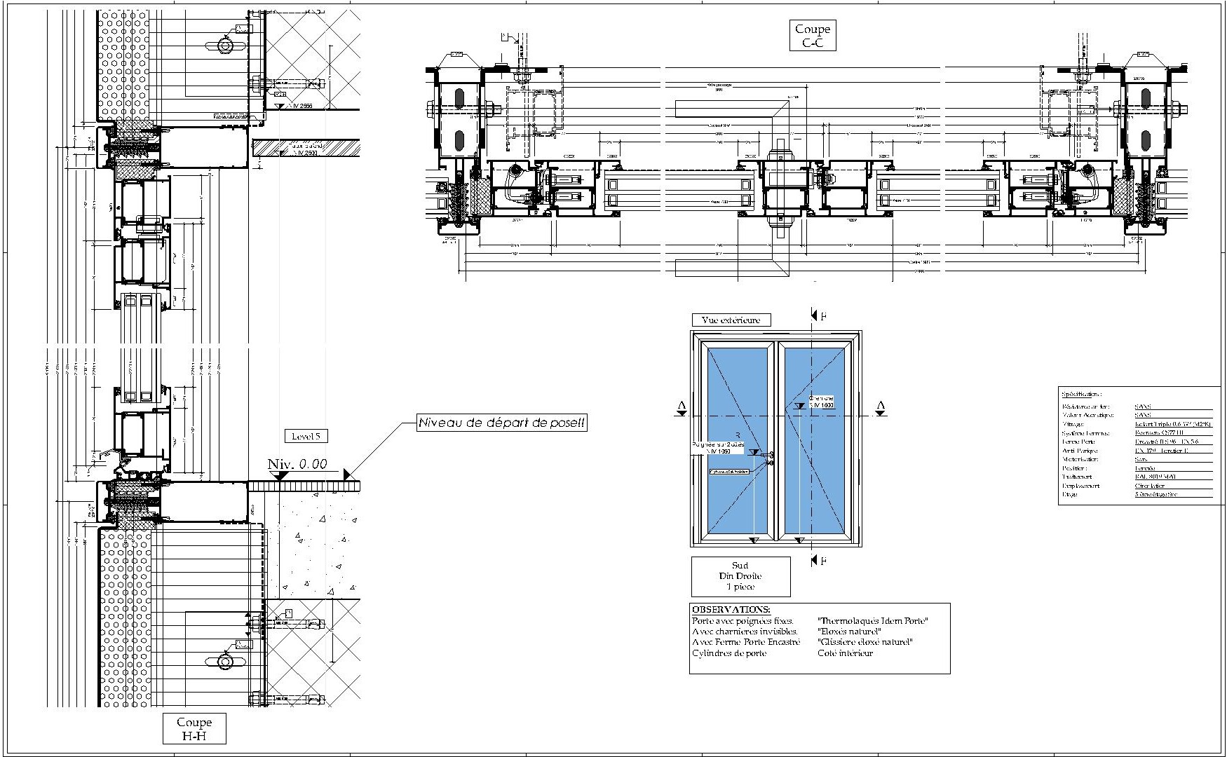
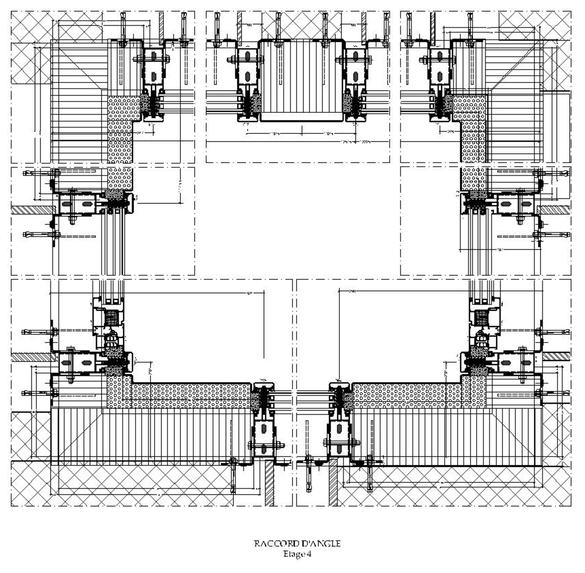
Plans, études et optimisations pour serruriers, façadiers et architectes.
Notre valeur ajoutée : vous faire gagner du temps et sécuriser vos projets
- Nous analysons vos besoins et contraintes.
- Nous réalisons des plans et présentations clairs pour vos clients et ateliers.
- Nous proposons des solutions conformes aux normes et optimisées en coûts et délais.
- Nous fournissons des livrables exploitables pour la fabrication (plans, listes, coupes).
La créativité et le respect des normes
Une conception claire et cohérente aux normes est la clé de la réussite.
Nous allons dans le détail selon vos demandes.
Nous vous proposons également une étude complet, garantissant l'alignement sur vos objectifs et une réalisation fluide tout au long du projet.
Nous avons les outils adaptés pour la conception des détails avec des moyens de calcul et réadaptation pour une rapide modification.
Imaginez le potentiel de votre espace, nous nous chargeons de le traduire en plans précis et réalisables
Vous avez des questions ?
Dans cette section, nous répondons aux questions les plus courantes sur nos services.
Qu'est-ce qui nous distingue ?
- Notre expérience de 15 ans dans la construction métallique en Suisse Romande.
- Réponses rapides à vos demandes.
- Les outils adaptés pour tous types de projets à réaliser, en 2D, 3D et systèmes de profilés.
Quels services proposons nous ?
- Etudes et réalisation des plans.
- Création des listes de commande avec optimisation de matériaux.
- Relevés de mesures sur chantier.
- Création d'appel d'offres et cahier de charges.
Comment garantissons nous la confidentialité de vos projets ?
Nous respectons strictement la confidentialité de vos projets. Nous ne publions rien sans votre accord ; sur demande, nous présentons des exemples anonymisés.




















